HD Тип европейски електрически повдигач с един железен надземен кран

HD Тип европейски електрически повдигач с един железен надземен кран

European Single Girder Overhead Crane е компактен подемен механизъм, проектиран и произведен в строго съответствие с FEM и DIN стандарт, който с напреднала технология и красив дизайн. Разделени в общ тип и тип окачване, подкрепящи използването на европейски стандартни електрически повдигачи, подходящи за обработка на сервизни и складови материали, прецизен монтаж на големи части и други места.
Чат сега

Информация за продукта

HD Тип европейски електрически повдигач с един железен надземен кран

Кратко описание:

European Single Girder Overhead Crane е компактен подемен механизъм, проектиран и произведен в строго съответствие с FEM и DIN стандарт, който с напреднала технология и красив дизайн. Разделени в общ тип и тип окачване, подкрепящи използването на европейски стандартни електрически повдигачи, подходящи за обработка на сервизни и складови материали, прецизен монтаж на големи части и други места.


image.png


Тя може да се използва широко в машиностроенето, металургията, петрола, вредното пристанище, пристанището, железопътния транспорт, гражданската авиация, храната, производството на хартия, строителството, работилницата по електрониката, складовете и други. прилагани за обработка на материали, които се нуждаят от точно позициониране, прецизна сглобка на големи компоненти.


Single-girder Overhead Crane.png

Подробни изображения:

Single-girder Overhead Crane.png

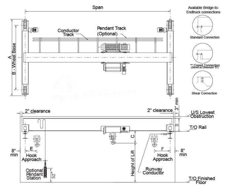
Чертеж на скица:

Single-girder Overhead Crane.png

Технически параметри:


педя

m

7.5

10.5

13.5

16.5

19.5

22.5

25.5

Капацитет

T

1 ~ 12,5 т

Общо тегло

килограма

1781 ~ 12,086

Тегло на количката

килограма

405 ~ 740

Макс. Натоварване на колелото

Кн

13,5 ~ 90.94

Пътна железница

P24 ~ P43

Скорост на повдигане

м / мин

0.8 / 5

0.8 / 5

0.8 / 5

0.8 / 5

0.8 / 5

0.8 / 5

0.8 / 5

Височина на повдигане

m

≥ 6

≥ 6

≥ 6

≥ 6

≥ 6

≥ 6

≥ 6

Обща мощност на мотора

kw

4.31

4.31

4.31

4.31

4.67

4.67

4.67

Скорост на кратера

м / мин

3-30

3-30

3-30

3-30

3-30

3-30

3-30

Скорост на количката

м / мин

2-20

2-20

2-20

2-20

2-20

2-20

2-20

Работно задължение

M5 / A5



包装运输.jpg

Запитване